• Aktuell
  • Büro
    • Philosophie
    • Team
    • Jobs
    • Publikation
    • Auszeichnungen
  • Projekte
  • andSUSTAIN
  • Kontakt
  • Aktuell
  • Büro
    • Philosophie
    • Team
    • Jobs
    • Publikation
    • Auszeichnungen
  • Projekte
  • andSUSTAIN
  • Kontakt

Let’s work together

Like our work? Arrange a meeting with us at our office, We'll be happy to work with you!

Wanna join our crazy team?

We are always looking for new talents and we were expecting you. Time to apply, buddy!

  • Aktuell
  • Büro
    • Philosophie
    • Team
    • Jobs
    • Publikation
    • Auszeichnungen
  • Projekte
  • andSUSTAIN
  • Kontakt

Recent Posts.

  • Holzbaupreis BW 2026 I Auszeichnung Mobilitätsstation Menzenschwand 11.05.2026
  • ONLINE Kompetenzatlas Zirkuläres Bauen 29.04.2026
  • Zweiter Bauabschnitt GREEN PAVILLION 09.04.2026
  • Mühlstrasse Metzingen – Rückbau hat begonnen! 07.04.2026
  • Wohnquartier für vulnerable Gruppen in Mannheim Käfertal 23.03.2026
andOFFICE
  • Aktuell
  • Büro
    • Philosophie
    • Team
    • Jobs
    • Publikation
    • Auszeichnungen
  • Projekte
  • andSUSTAIN
  • Kontakt

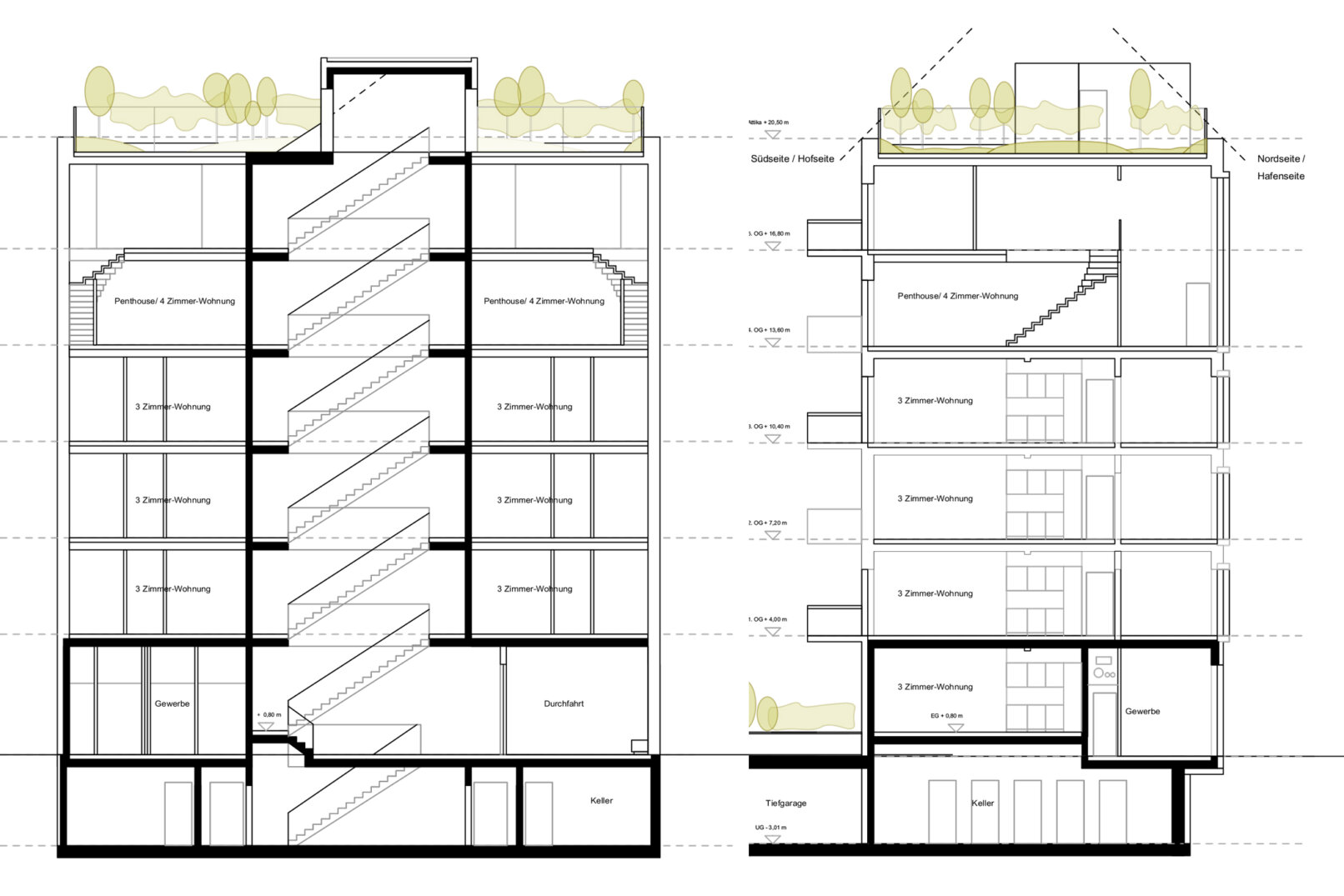
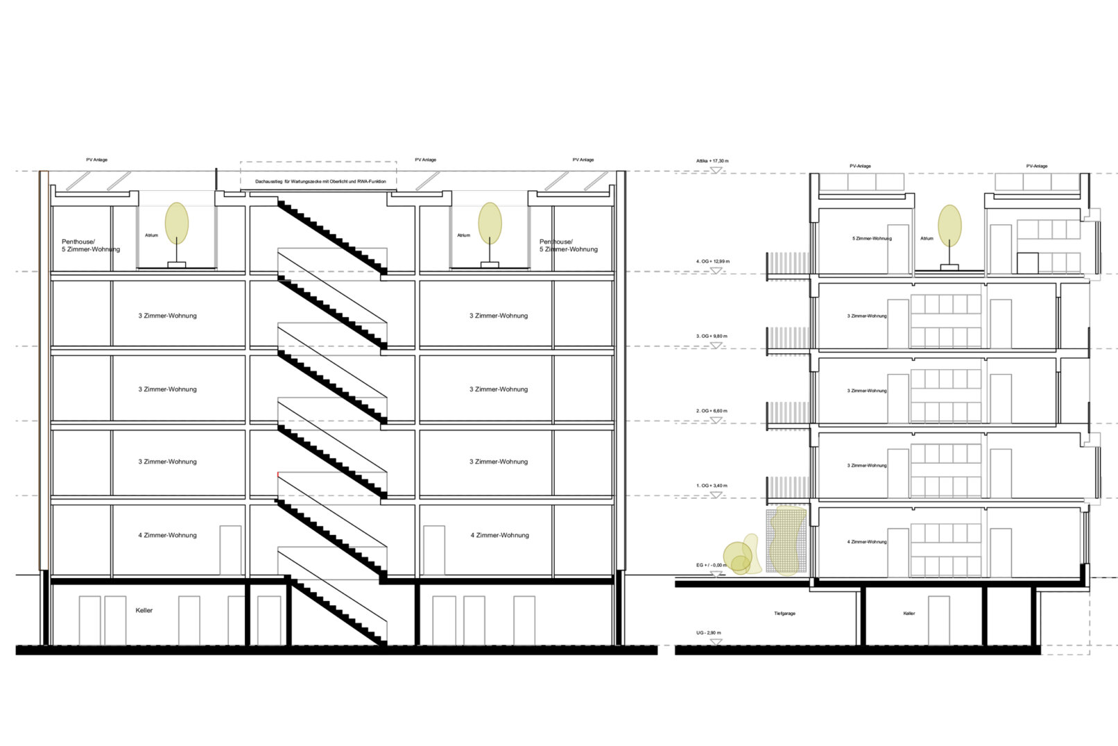
Neckarbogen, Heilbronn

Standort : BUGA Neckarbogen, Heilbronn

Neubau von Geschosswohnungsbau mit Dachgarten

Eingeladener Wettbewerb für Strenger iQ

andOFFICE
Blatter Ertel Probst
Freie Architekten PartGmbB

Hasenbergstraße 49B
70176 Stuttgart
Deutschland

Tel: +49 (0) 711 50 46 64 21
Fax: +49 (0) 711 50 47 04 10
contact@andOFFICE.com


  • Facebook
  • Instagram

andOFFICE 2018 – Impressum – Datenschutz